NSB Kompetansesenter
2019.06.04 13:19
Kompetansesenteret er første byggetrinn av et nytt Campusområde sentralt i Drammen. Fasaden med bevegelige glasslameller og perforerte stålplater viser energitiltakene i bybildet.
Utbygger
ROM Eiendom/Bane Nor Eiendom
Kommune
Drammen
Arkitekt
alt arkitektur
Miljørådgiver
Multiconsult
Landskapsarkitekt
Landskapsfabrikken, Hindhamar Landskapsarkitekter
Status
Ferdigstilt (2010)
Prosjektbeskrivelse
Jernbaneverkstedet på Sundland fra 1909-1911 ble i 2003 omregulert til et byutviklingsområde. Parallelt med pågående revisjon av reguleringsplanen ble skisseprosjektering av en ny skole for NSB igangsatt i 2009. Revidert reguleringsplan har som mål å skape et urbant sentrumsområde, gode boliger og et nytt Campusområde ved ny tilfartsvei til Drammen. Reguleringsplanene har blitt utført av alt. Arkitektur. Klimariktig byutvikling har vært premissgivende for planarbeidet.
NSB Kompetansesenteret ble ferdigstilt i 2010. Senteret består av skole, høgskole og kontorer og kan huse opp til 450 personer.
Bygget har et kompakt volum. En ytre kappe av et båndtekket tak og teglvegger rammer inn gavlene. Gavlene er sammensatt av to sjikt. Det ytterste sjiktet viser et forfinet ”ornament” av perforerte stålplater som mot sør danner en solskjerm. Det innerste sjiktet er en kledning av fargerike plater som ligger utenpå isolasjonen. Sokkelen av bygget var opprinnelig tenkt mer åpen, men ble omprosjektert med bedre isolasjon for å oppnå lavere energiforbruk. På tross av endringen er kontakt mellom skolens indre liv og byens rom ivaretatt.
Arkitekten har hatt høyt fokus på arealeffektivitet i det kompakte bygget på fem etasjer. NSB Kompetansesenter disponerer de fire nederste, mens femte etasje løser byggets kantine og gir mulighet til utleie, og kan med tiden romme en større skole. Inngang er fra Campustorget, et planlagt avgrenset og stille byrom. Simulatorsenter for fullskalaøvelser i lokfører- og konduktøropplæringen fyller nesten hele første etasje.
Etasjene i skolen bindes sammen av en sentralt plassert vertikal lobby, der hvert repos utgjør en møteplass. Rommet er henvendt til Campustorget og strekker seg helt til taket der overlys løser røykevakuering ved brann. Overlys og store vinduer gir variert lysinnfall og sikt mellom etasjer og uterom.
Den vertikale lobbyen gir direkte atkomst til skolens store auditorium og sentral korridor med videre fordeling til undervisnings- og spesialrom samt kontorer på plan 2, 3 og 4. Auditorium ligger på plan 2 og 3 der forhold mellom arealer gir mulighet til lukkede arrangementer og sikt ned i simulatorsenteret.
Bygget har ellers vertikalforbindelser gjennom to trapperom og heiser. Ett av trappene går direkte fra resepsjon til eventuelle leietaker i femte etasje.
Saltaksformen gir rom for å innlemme alle de tekniske installasjonene under mønet. Det er kun ventiler fra ventilasjonsaggregater og glasstak for overlys og røykevakuering som stikker opp av takflaten.
Utforming av skolens lokaler er gjort med tanke på sirkulasjon i undervisning, samt universell utforming. NSBs fargepalett og detaljer med direkte assosiasjon til dagens tog er brukt bevisst i interiør og eksteriør.
Prosess
Byggherre hadde en målsetting om at energiforbruk i bygget skulle være under 100kW/m² år. Dette utløste miljøfokus under programmerings-, skisse- og kontraheringsfasen. Videre ble miljøsamarbeidet med totalentreprenøren konkretisert.
For å nå energimålsettinger utarbeidet alt. arkitektur et kvalitetsprogram i starten av prosessen. Sammen med miljøkoordinator Sverre Tiltnes fra FAVEO ble dette videreutviklet og til slutt nedfelt i Bok 0 i tilbudsgrunnlaget. ROM Eiendom satte strenge miljøføringer i forprosjektet som ble videreført av OKK Entreprenør gjennom detaljprosjektering og utførelse i samarbeid med oppdragsgiver.
Miljøtiltak
Bymiljø og arkitektur
Bygget er lokalisert på Sundland, et sted med tradisjon for tog. Tidlig på 1900-tallet var verkstedet her av landets fremste teknologibedrifter. Prosjektet inngår i et nytt byområde som i den konteksten omtales som Campus Sundland.
Campus Sundland består i dag av en rekke undervisningsrelaterte bedrifter og skoler. Sentralt i området opparbeides flere byrom som gir en gjennomgående gang og sykkel mulighet. Ny NSB skole vil styrke campus og forsterke byrom vest for dagens bygg C. Utforming av skolens lokaler er gjort med tanke på sirkulasjon i undervisning, samt universell utforming.
NSBs fargepalett og detaljer med direkte assosiasjon til dagens tog er brukt bevisst i interiør og eksteriør.
Klimagassutslipp
Prosjekt NSB kompetansesenter ble prosjektert etter FutureBuilt-kriteriet om minst 50 prosent reduksjon av klimagassutslipp sammenlignet med dagens standard. Det er utarbeidet et klimagassregnskap som dekker områdene transport i drift, stasjonær energi og materialbruk.
Det er utarbeidet klimagassberegninger for alle faser av prosjektet: prosjektert, som bygget og i drift. Det er brukt Statsbyggs klimagassregnskap www.klimagassregnskap.no, versjon 3, til å gjennomføre beregningene.
Klimagassregnskap «prosjektert» viser en samlet reduksjon i klimagassutslipp på 39 prosent, « som bygget» på 30 prosent og «i drift» på 21 prosent.
Klimagassutslipp fra transport for «prosjektert» er på cirka 50 prosent mens det er bare erer på 2,4 prosent for «som bygget». Hovedårsakene til forskjellene mellom «prosjektert» bygg og «som bygget» er at det er flere reisekilometer for både bil og kollektivtransport, lavere bilbelegg og en høyere andel bilreisende blant de ansatte. NSB-studentenes reisemønster er annerledes enn hva standardverdier for studenter ved universitet/høyskole tilsier. For referansebygg er standardverdier benyttet. For prosjektert bygg anslagene basert på erfaringsdata fra fast ansatte ved NSB kompetansesenter, samt faglige vurderinger.
Beregningen for klimagassutslipp fra energi viser at man oppnådde en reduksjon på 50 prosent ved å gå fra «referansebygget» med energiforbruk på 179 kWh/m2år og 100 % fjernvarme til prosjektert bygg «As built» med klasse A; energiforbruk på 80,6 kWh/m2år og 70 % varmepumpe og 30 % fjernvarme. Målt energiforbruk «i drift» resulterer i en reduksjon på 34-36 prosent. Dette skyldes bade høyere elektrisitetsforbruk og vesentlig høyere fjernvarmeforbruk enn forutsatt i energiberegningene.
Klimagassutslipp fra materialer er på 16 prosent. Dette prosjektet kom med i Futurebuilt i en tidlig fase av programmet og i en sen fase av byggeprosjektet. Det har derfor ikke blitt arbeidet med reduserte klimagassutslipp for materialer, men det ble satt fokus på innhenting av miljødokumentasjon og vurdering av emisjoner, helse og miljøskadelige stoffer.
De viktigste klimagasstiltakene for prosjektet har vært: - Kompakt bygningskropp - Riktig orientering - Enkel geometri som forenkler tetting, isolering og gjør bygget mindre vindutsatt - Valg av sunne og lavemitterende materialer
Energi
NSB Kompetansesenter har et relativt lavt energiforbruk. Det er et resultat av godt samarbeid og systematisk bruk av tradisjonelle virkemidler. Viktige punkter i prosjektering har vært en kompakt bygningskropp, riktig orientering og enkel geometri som forenkler tetting, isolering og gjør bygget mindre vindutsatt.
Å tilfredsstille passivhusstandard var ikke et opprinnelig mål, men energiambisjonen ble oppjustert under prosjekteringen og ble oppnådd ved mer isolasjon, høye krav til tetthet, gode kuldebroløsninger og vinduer. En bygningsfysiker har beregnet U-verdier og verdier for kuldebroer i alle bygningsdeler.
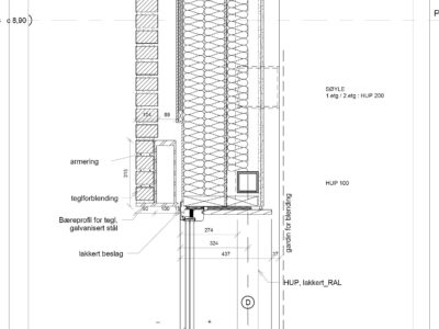
Passive tiltak og tett bygningskropp Bygget er basert på passive tiltak. Byggdetaljer er utviklet fra kjente prinsipper og grønt byggeri. Det er lagt vekt på trivselsfaktorer, for eksempel kan vinduene i alle rom åpnes. Byggets fasader er delt i to sjikt. Det indre definerer det isolerte og tette volumet. Der hvor det er synlig, er det brukt en kledning med fargerike Steniplater. Utenfor står teglveggene på egen bæring løsrevet fra det tette volumet.
Bygget har tykk isolasjon (250mm i gulv, 325mm i vegg og 450mm i tak), gode vinduer, godt gjenvinningssystem for varme, samt funksjonelle styringssystemer for lys og energi. Øvrige passive tiltak er: - Utvendig solavskjerming reduserer kjølebehovet - Eksponert bærekonstruksjon/dekker i betong, akkumulerer varme og kulde og jevner ut temperatursvingningene - Romslige takhøyder reduserer ventilasjon og kjølebehov - Høye vinduer bidrar til å spre godt med dagslys inn i lokalene - Totalt vindusareal er begrenset til “hull” bortsett fra i ”fellesrom” som har store glassflater for best mulig kontakt inne-ute - Dagslysberegnet og minimalisert vindusarealer, 13 % av oppvarmet m² BRA - Tette yttervegger og tak for lav infiltrasjon sikres med inntrukket og kontinuerlig diffusjonssperre, dobbel vindtetting og meget streng kvalitetskontroll ved utførelse (krav < 1,0 luftvekslinger ved 50 Pa) - Delt isolasjon i klimavegger som hindrer luftkonveksjon (konveksjonssperre) - Dampsperren er sikret mot brudd ved gu-plate i samme sjikt - Kuldebroer stoppes effektiv med 220 mm isolasjon foran alle dekkekanter - Søyler og bjelker er trukket inn i bygget - Vinduer med lav u-verdi er riktig plassert i ytterveggen - Antall åpningsvinduer er begrenset til 1 per rom og gir brukerne luftemuligheter - Valg av sunne og lavemitterende materialer
Andre energibesparende tiltak Isolering og vinduer (NorDan N-tech) gav tilstrekkelig U-verdi, men tilfredsstilte ikke kravene til støyreduksjon. Vinduer er derfor utstyrt med et ekstra innvendig varevindu som ble nødvendig for å takle fremtidige støykrav.
Heisene gir energitilskudd til bygget ved utnyttelse av fallenergi.
Det benyttes Colt-system som solavskjerming. Colt består av rasterprint på bevegelige glasslameller og sikrer dagslys i bygget samtidig som 85% av varmeinngangen hindres. Lamellene beveger seg med sola og stilles i åpen posisjon når det ikke er sol.
Bygget er også utstyrt med et ytre sjikt av perforerte stålplater på søndre gavl som reduserer solinnslipp og kjøling i bakenforliggende rom.
Øvrige aktive tiltak er: - Behovsstyring av luft til alle rom og soner med VAV-system - Moderate luftmengder - Høyeffektiv roterende varmegjenvinner med 85% temperaturvirkningsgrad - 4 aggregater gir lav SFP-faktor og gunstig behovsstyring - Romslige kanaler og effektiv kanalføring gir lav SFP - Frilagte betongdekker for termisk lagring og temperaturutjevning - Mulighet til gjennomspyling om natten for å kjøle ned konstruksjonene - Innvendige sanitæranlegg gis lik utforming og utstyrsbruk som begrenser vannforbruk og derved omfanget av avløpsvann - Bygget tilknytter fjernvarme gjennom varmeveksler plassert i eget rom i bygget. Fjernvarmen benyttes som spisslast ved behov - Bygget er utformet slik at kjøleanlegg ikke skal være nødvendig
Energikilder En luft-vannvarmepumpe med omtrent 400 kW avgitt effekt skal ivareta byggets generelle varme-og kjølebehov. I tillegg er det valgt et radiatoranlegg for å dekke opp for transmisjonstap og kaldras i bygget. I inngangspartiet er det vannbåren varme. En kabel med systemspenning 400V forsyner bygget med strøm.
Belysning Bygget har en blanding av lysrør for allmenn belysning og LED for effektbelysning. Belysningsanleggene er behovsstyrt med bevegelsesdetektor og luxføler i rom med større vindusflater og mye dagslys.
Formidling Energibruken vises på eget energipanel synlig ved resepsjonen.
Konstruksjoner og materialbruk
NSB Kompetansesenter er ikke bare energieffektiv, det er også tenkt riktig valg av materialer. Det er søkt etter miljømessig akseptable produkter ved bruk av Folksam byggmiljøguide og Svanemerkeordningen. Miljøkoordinatoren, engasjert av ROM eiendom, hadde en viktig rolle her. Det er lagt vekt på: • Gode bestandige materialer som ikke påvirker innemiljøet • Materialer som er enkle å rengjøre og vedlikeholde • Bruk av materialer med liten belastning på ytre miljø, både i form av gode livsløpsegenskaper og uten spredning av farlige stoffer • Enkel løsningsdesign med begrenset utvalg materialer • Materialene kan gjenvinnes og resirkuleres • Kortreiste materialer
Godt innemiljø
Byggets normale ventilasjonsbehov er på cirka 62.000 m3/h levert gjennom fire aggregater som er plassert under mønet. Ventilasjonsbehovet er redusert gjennom passive tiltak, bruk av byggets naturlige vertikale forbindelser, vinduer som kan åpnes, et strengt regime på tetthetskrav og materialbruken. Nødvendige kanalanlegg ligger i korridorsoner og sjakter.
Brukere av bygget blir påvirket til å akseptere temperaturvariasjoner over et større spekter enn normale temperaturkrav.
Universell utforming
Tiltak for universell utforming er gjort til et betydelig poeng i arkitekturen som viser flere løsninger som går ut over dagens krav. Hensyn til universell utforming danner grunnlag for byggets romlige struktur og detaljering. Det er lagt vekt på at ledelinjer og farger integreres i arkitekturen slik at bygget preges av lesbarhet i så stor grad at det oppstår slektskap til signalmarkeringer i dagens tog. Alle dører i vrimle- og korridorområder er automatiserte, og hver etasje har 2 handikaptoaletter.
Overvannshåndtering
Drenering av overvann fra bygg og utomhusanlegg er planlagt i tråd med forventede større nedbørsmengder. Det er både etablert fordrøyningsmagasin (steinfylte rørmagasiner) like nord for NSB Kompetansesenter, og områder med lokal infiltrasjon. Mengden takvann og overvann fra plassrom forsinkes dermed på vei ut i kommunalt ledningsnett.
Nøkkeltall
AREALFORBRUK
7113 m² (bruksareal BRA) fordelt på 400 brukere.
| Areal BRA | 7113 m2 |
| Antall beboere/brukere | 400 |
| Glassandel | 12,2 % |
| Kompakthetsfaktor | 0,108 m3 volum/m2 |
KLIMAGASSREGNSKAP
| Referanse | Prosjekt | Ferdig | I drift | |
| Energi | 18 | 9 | 9 | — |
| Materialbruk | 13 | 11 | 11 | — |
| Transport | 7 | 3 | 7 | — |
ENERGI
Netto energibehov: 80,6 kWh/m² år. Levert energi: 70,9 kWh/m² år. (Beregnet iht NS3031).
| Energimerke: | A |
| Oppvarmingskarakter: | lysegrønn |
| Netto energibehov: | 81 kWh/m2/år (NS3031) |
| Beregnet levert energi: | 71 kWh/m2/år (NS3031) |
| Energikilder: | Varmepumpe vann-vann, Bio-kjel, Fjern-/nærvarmeanlegg (kun spisslast) |
ENERGIBUDSJETT
| Romoppvarming: | 2 kWh/m2/år |
| Ventilasjonsvarme: | 5,5 kWh/m2/år |
| Varmtvann: | 8 kWh/m2/år |
| Viftedrift: | 10,9 kWh/m2/år |
| Pumpedrift: | 0,6 kWh/m2/år |
| Belysning: | 17,3 kWh/m2/år |
| Teknisk utstyr: | 29,3 kWh/m2/år |
| Ventilasjonskjøling: | 8,3 kWh/m2/år |
BYGNINGSTEKNISK
| U-verdi tak: | 0,1 snittverdi |
| U-verdi gulv: | 0,09 snittverdi |
| U-verdi yttervegg: | 0,12 snittverdi |
| U-verdi vindu/dører: | 0,79 snittverdi |
| Tetthetsprøving (målt): | 0,44 (ved 50 Pa undertrykk) |
| Spesifikk vifteeffekt: | 1,5 kW/(m3/s) |
| Årsvirkningsgrad varmegjenvinner: | 84 % |
TRANSPORT
| Avstand til sentrum: | 1500 m |
| Nærmeste høyfr. koll.knutepkt: | 200 m |
| Parkeringsplasser: | 3,5 (pr. 1000 m2) |
| Sykkelparkeringsplasser: | 15 (pr 1000 m2) |
KOSTNADER OG STØTTE
Kr 16 000 per m² BTA eks. mva
| Kvadratmeterpris: | 16000 kr/m2 |
Prosjektopplysninger
PROSJEKTDETALJER
| Adresse: | Skogliveien 4, Drammen |
| Kommune: | Drammen |
| Prosjektperiode: | 2009 - 2010 |
| Status: | Ferdigstilt (2010) |
| Prosjekttype: | Nybygg |
| Funksjon/bygningstype: | Næring |
| Forbildeprogram: | FutureBuilt |
| Konkurranseform: | Direkte engasjement |
| Entrepriseform: | Totalentreprise |
PROSJEKTTEAM
| Byggherre: | ROM Eiendom AS/Bane Nor Eiendom |
| Arkitekt: | alt arkitektur as |
| Landskapsarkitekt: | Landskapsfabrikken, Hindhamar Landskapsarkitekter AS |
| Prosjektledelse: | Oslo Prosjektadministrasjon AS |
| Universell utforming: | alt arkitektur as |
| Miljørådgiver: | Multiconsult AS |
| Energirådgiver (RIEn): | PTL |
| Rådgivere: | Will Arentz AS, EM teknikk AS, Heiberg & Tveter, Asplan Viak, Solberg og Toftenes AS, BS Akustikk AS, Rambøll Norge (RIB), Termografi og måleteknikk AS |
| Hovedentreprenør: | OKK Entreprenør AS |
| Byggledelse: | Oslo Prosjektadministrasjon AS |
| Underentreprenører: | Nor Dan AS, Colt Nordic, Profax AS, OKK Tømmer |